
추풍령 주거플랫폼 문화복합시설 <입상>
Chupungyeong Cultural Complex Facility
위치 : 충청북도 영동군 추풍령면 추풍령리 80-5 외 2필지
기간 : 2023.9 ~ 2023.11
용도 : 문화 및 집회시설
면적 : 746.55㎡
규모 : 지상2층
설계 : 문경진, 김령아
사진 : 아울러건축사사무소

추풍령 주거플랫폼 문화복합시설 <입상>
Chupungyeong Cultural Complex Facility
위치 : 충청북도 영동군 추풍령면 추풍령리 80-5 외 2필지
기간 : 2023.9 ~ 2023.11
용도 : 문화 및 집회시설
면적 : 746.55㎡
규모 : 지상2층
설계 : 문경진, 김령아
사진 : 아울러건축사사무소

추풍령 주거플랫폼 문화복합시설 <입상>
Chupungyeong Cultural Complex Facility
위치 : 충청북도 영동군 추풍령면 추풍령리 80-5 외 2필지
기간 : 2023.9 ~ 2023.11
용도 : 문화 및 집회시설
면적 : 746.55㎡
규모 : 지상2층
설계 : 문경진, 김령아
사진 : 아울러건축사사무소

1. 대지현황 분석

2. 3개 영역의 경계

3. 매스와 외부공간

1. 대지현황 분석

2. 3개 영역의 경계

3. 매스와 외부공간

1. 대지현황 분석

2. 3개 영역의 경계

3. 매스와 외부공간
대지현황 분석 및 기본계획 방향
1. 대지현황 분석
대지는 추풍령리 마을 북동쪽에 산지가 시작하는 곳에 위치한다. 대지 남측의 추풍령삼거리와 서측의 추풍령역은 대지에서 약 500m 떨어져 있고 그 사이에 주요 공공시설이 위치한다. 대지 동측에는 마암산이 병풍처럼 대지를 둘러싸고 있다. 북측으로 임대주택으로 구성된 주거플랫폼이 들어선다.
2. 3개 영역의 경계
기존의 추풍령리 마을과 마암산에 주거플랫폼이 추가되어, 대지는 다른 성격의 3개 영역이 교차하는 경계가 된다. 대지 남∙서측으로는 완만한 경사 아래로 추풍령리 마을을 조망할 수 있고, 동측으로 올려다 보면 마암산이 눈에 들어온다. 그리고 주거플랫폼에 들어설 주택의 위치와 일조∙프라이버시 등을 고려하여, 문화복합시설을 배치해야 한다.
3. 매스와 외부공간
외부공간은 3부분으로 분절된다. 추풍령리 마을 방향의 외부공간은 지역주민을 위한 커뮤니티마당이 된다. 마암산쪽 사이 공간은 주민공동텃밭으로 활용한다. 주거플랫폼과 인접한 부분에는 주차장을 배치한다. 그리고 영역이 중첩되는 경계에 매스를 배치하여, 매스가 담아내는 프로그램으로 경계를 완화한다.
1. 대지현황 분석
대지는 추풍령리 마을 북동쪽에 산지가 시작하는 곳에 위치한다. 대지 남측의 추풍령삼거리와 서측의 추풍령역은 대지에서 약 500m 떨어져 있고 그 사이에 주요 공공시설이 위치한다. 대지 동측에는 마암산이 병풍처럼 대지를 둘러싸고 있다. 북측으로 임대주택으로 구성된 주거플랫폼이 들어선다.
2. 3개 영역의 경계
기존의 추풍령리 마을과 마암산에 주거플랫폼이 추가되어, 대지는 다른 성격의 3개 영역이 교차하는 경계가 된다. 대지 남∙서측으로는 완만한 경사 아래로 추풍령리 마을을 조망할 수 있고, 동측으로 올려다 보면 마암산이 눈에 들어온다. 그리고 주거플랫폼에 들어설 주택의 위치와 일조∙프라이버시 등을 고려하여, 문화복합시설을 배치해야 한다.
3. 매스와 외부공간
외부공간은 3부분으로 분절된다. 추풍령리 마을 방향의 외부공간은 지역주민을 위한 커뮤니티마당이 된다. 마암산쪽 사이 공간은 주민공동텃밭으로 활용한다. 주거플랫폼과 인접한 부분에는 주차장을 배치한다. 그리고 영역이 중첩되는 경계에 매스를 배치하여, 매스가 담아내는 프로그램으로 경계를 완화한다.

1. 대지현황 분석

2. 3개 영역의 경계

3. 매스와 외부공간

1. 대지현황 분석

2. 3개 영역의 경계

3. 매스와 외부공간

1. 대지현황 분석

2. 3개 영역의 경계

3. 매스와 외부공간
대지현황 분석 및 기본계획 방향
1. 대지현황 분석
대지는 추풍령리 마을 북동쪽에 산지가 시작하는 곳에 위치한다. 대지 남측의 추풍령삼거리와 서측의 추풍령역은 대지에서 약 500m 떨어져 있고 그 사이에 주요 공공시설이 위치한다. 대지 동측에는 마암산이 병풍처럼 대지를 둘러싸고 있다. 북측으로 임대주택으로 구성된 주거플랫폼이 들어선다.
2. 3개 영역의 경계
기존의 추풍령리 마을과 마암산에 주거플랫폼이 추가되어, 대지는 다른 성격의 3개 영역이 교차하는 경계가 된다. 대지 남∙서측으로는 완만한 경사 아래로 추풍령리 마을을 조망할 수 있고, 동측으로 올려다 보면 마암산이 눈에 들어온다. 그리고 주거플랫폼에 들어설 주택의 위치와 일조∙프라이버시 등을 고려하여, 문화복합시설을 배치해야 한다.
3. 매스와 외부공간
외부공간은 3부분으로 분절된다. 추풍령리 마을 방향의 외부공간은 지역주민을 위한 커뮤니티마당이 된다. 마암산쪽 사이 공간은 주민공동텃밭으로 활용한다. 주거플랫폼과 인접한 부분에는 주차장을 배치한다. 그리고 영역이 중첩되는 경계에 매스를 배치하여, 매스가 담아내는 프로그램으로 경계를 완화한다.

1. 3개의 매스, 3개의 외부공간

2. 하나의 공간, 확장되는 커뮤니티

3. 풍경을 담아내는 가을바람언덕

1. 3개의 매스, 3개의 외부공간

2. 하나의 공간, 확장되는 커뮤니티

3. 풍경을 담아내는 가을바람언덕

1. 3개의 매스, 3개의 외부공간

2. 하나의 공간, 확장되는 커뮤니티

3. 풍경을 담아내는 가을바람언덕
설계과정
1. 3개의 매스, 3개의 외부공간
공용공간(추풍령리 마을↔︎주거플랫폼) : 신안로 및 주차장과 접근성 고려
도서관(주거플랫폼↔︎마암산) : 도로 및 주거플랫폼과 거리 고려
다목적문화 커뮤니티룸(마암산↔︎추풍령리 마을) : 커뮤니티마당의 마을축제나, 텃밭에서 수확한 작물을 활용한 김장담그기 등 여러 행사를 고려
2. 하나의 공간, 확장되는 커뮤니티
3개 매스를 연결하여, 하나의 공간으로 만든다. 매스에 나뉘어 있던 프로그램은 하나의 연속적인 바닥 위에 놓인다. 그 중심에 북카페를 배치하여 프로그램 간의 경계를 허물게 되면, 주민들은 북카페를 거쳐 자유롭게 이동할 수 있다. 내∙외부공간을 연계하여, 매스 사이의 틈에 위치한 크고 작은 마당도 북카페가 된다. 그리고 마당 너머 추풍령리 마을, 마암산, 주거플랫폼까지 시선을 확장한다.
3. 풍경을 담아내는 가을바람언덕
추풍령리는 분지 지형으로, 대지 어느 곳에서나 산세를 볼 수 있다. 지역경관을 고려하여, 지붕과 옥상의 형태에 경사를 적용한다. 가을바람언덕과 옥상공연장의 경사를 따라 올라가면, 마암산의 봉우리가 눈에 들어온다. 반대로 높은 곳에 올라 아래쪽을 내려다 보면, 추풍령리 마을과 소백산맥이 펼쳐진다.
1. 3개의 매스, 3개의 외부공간
공용공간(추풍령리 마을↔︎주거플랫폼) : 신안로 및 주차장과 접근성 고려
도서관(주거플랫폼↔︎마암산) : 도로 및 주거플랫폼과 거리 고려
다목적문화 커뮤니티룸(마암산↔︎추풍령리 마을) : 커뮤니티마당의 마을축제나, 텃밭에서 수확한 작물을 활용한 김장담그기 등 여러 행사를 고려
2. 하나의 공간, 확장되는 커뮤니티
3개 매스를 연결하여, 하나의 공간으로 만든다. 매스에 나뉘어 있던 프로그램은 하나의 연속적인 바닥 위에 놓인다. 그 중심에 북카페를 배치하여 프로그램 간의 경계를 허물게 되면, 주민들은 북카페를 거쳐 자유롭게 이동할 수 있다. 내∙외부공간을 연계하여, 매스 사이의 틈에 위치한 크고 작은 마당도 북카페가 된다. 그리고 마당 너머 추풍령리 마을, 마암산, 주거플랫폼까지 시선을 확장한다.
3. 풍경을 담아내는 가을바람언덕
추풍령리는 분지 지형으로, 대지 어느 곳에서나 산세를 볼 수 있다. 지역경관을 고려하여, 지붕과 옥상의 형태에 경사를 적용한다. 가을바람언덕과 옥상공연장의 경사를 따라 올라가면, 마암산의 봉우리가 눈에 들어온다. 반대로 높은 곳에 올라 아래쪽을 내려다 보면, 추풍령리 마을과 소백산맥이 펼쳐진다.

1. 3개의 매스, 3개의 외부공간

2. 하나의 공간, 확장되는 커뮤니티

3. 풍경을 담아내는 가을바람언덕

1. 3개의 매스, 3개의 외부공간

2. 하나의 공간, 확장되는 커뮤니티

3. 풍경을 담아내는 가을바람언덕

1. 3개의 매스, 3개의 외부공간

2. 하나의 공간, 확장되는 커뮤니티

3. 풍경을 담아내는 가을바람언덕
설계과정
1. 3개의 매스, 3개의 외부공간
공용공간(추풍령리 마을↔︎주거플랫폼) : 신안로 및 주차장과 접근성 고려
도서관(주거플랫폼↔︎마암산) : 도로 및 주거플랫폼과 거리 고려
다목적문화 커뮤니티룸(마암산↔︎추풍령리 마을) : 커뮤니티마당의 마을축제나, 텃밭에서 수확한 작물을 활용한 김장담그기 등 여러 행사를 고려
2. 하나의 공간, 확장되는 커뮤니티
3개 매스를 연결하여, 하나의 공간으로 만든다. 매스에 나뉘어 있던 프로그램은 하나의 연속적인 바닥 위에 놓인다. 그 중심에 북카페를 배치하여 프로그램 간의 경계를 허물게 되면, 주민들은 북카페를 거쳐 자유롭게 이동할 수 있다. 내∙외부공간을 연계하여, 매스 사이의 틈에 위치한 크고 작은 마당도 북카페가 된다. 그리고 마당 너머 추풍령리 마을, 마암산, 주거플랫폼까지 시선을 확장한다.
3. 풍경을 담아내는 가을바람언덕
추풍령리는 분지 지형으로, 대지 어느 곳에서나 산세를 볼 수 있다. 지역경관을 고려하여, 지붕과 옥상의 형태에 경사를 적용한다. 가을바람언덕과 옥상공연장의 경사를 따라 올라가면, 마암산의 봉우리가 눈에 들어온다. 반대로 높은 곳에 올라 아래쪽을 내려다 보면, 추풍령리 마을과 소백산맥이 펼쳐진다.


커뮤니티마당에서 바라본 문화복합시설

커뮤니티마당에서 바라본 문화복합시설


주거플랫폼에서 바라본 문화복합시설

주거플랫폼에서 바라본 문화복합시설


주민공동텃밭에서 바라본 문화복합시설

주민공동텃밭에서 바라본 문화복합시설


커뮤니티의 중심이 되는 북카페
북카페는 1층 전체와 외부로 확장되고, 주거플랫폼 커뮤니티의 중심이 된다.

커뮤니티의 중심이 되는 북카페
북카페는 1층 전체와 외부로 확장되고, 주거플랫폼 커뮤니티의 중심이 된다.


3개의 매스를 연결하는 하나의 공간
각 매스에 담긴 3개의 프로그램은 연속적인 바닥 위에 놓이고, 주민들은 중앙의 북카페를 거쳐 자유롭게 이동할 수 있다.

3개의 매스를 연결하는 하나의 공간
각 매스에 담긴 3개의 프로그램은 연속적인 바닥 위에 놓이고, 주민들은 중앙의 북카페를 거쳐 자유롭게 이동할 수 있다.


이어지는 활동과 시선
매스 사이의 틈으로 여러 마당과 북카페가 중첩되어 보이고, 북카페를 중심으로 활동과 시선은 외부로 확장된다.

이어지는 활동과 시선
매스 사이의 틈으로 여러 마당과 북카페가 중첩되어 보이고, 북카페를 중심으로 활동과 시선은 외부로 확장된다.


입체적 공간과 펼쳐지는 시선
계단식 자유열람실을 통해, 1층의 도서관은 2층으로 확장되고, 도서관에서는 주거플랫폼마당과 단지가 내려다 보인다.

입체적 공간과 펼쳐지는 시선
계단식 자유열람실을 통해, 1층의 도서관은 2층으로 확장되고, 도서관에서는 주거플랫폼마당과 단지가 내려다 보인다.


도서관(계단식 자유열람실)

도서관(계단식 자유열람실)


도서관(지상1층)

도서관(지상1층)


다목적문화 커뮤니티룸(지상1층)

다목적문화 커뮤니티룸(지상1층)


디지털놀이방(지상2층)

디지털놀이방(지상2층)


가을바람언덕과 옥상공연장
가을바람언덕과 옥상공연장의 경사는 주변 지형을 따라간다. 시선이 경사를 따라 올라가면, 마암산의 봉우리가 눈에 들어온다.

가을바람언덕과 옥상공연장
가을바람언덕과 옥상공연장의 경사는 주변 지형을 따라간다. 시선이 경사를 따라 올라가면, 마암산의 봉우리가 눈에 들어온다.


풍경을 담아내는 가을바람언덕
가을바람언덕에 올라 내려다 보면, 추풍령리 마을과 소백산맥이 펼쳐진다. 가을바람언덕을 감싸고 있는 벽돌난간은 성곽처럼 오르락 내리락 이어져, 추풍령의 풍경을 담아낸다.

풍경을 담아내는 가을바람언덕
가을바람언덕에 올라 내려다 보면, 추풍령리 마을과 소백산맥이 펼쳐진다. 가을바람언덕을 감싸고 있는 벽돌난간은 성곽처럼 오르락 내리락 이어져, 추풍령의 풍경을 담아낸다.


임대주택단지의 스케일과 맥락을 존중하는 문화복합시설

임대주택단지의 스케일과 맥락을 존중하는 문화복합시설

배치도
1. 진입마당
2. 커뮤니티마당
3. 주민공동텃밭
4. 독서정원
5. 독서마당
6. 주거플랫폼마당
7. 주차장
8. 옥상공연장(옥탑층)
9. 가을바람언덕(옥탑층)
10. 태양광발전패널(지붕붕층)
1
2
3
3
4
5
6
7
8
9
10
10
9
8
7
6
5
4
3
3
2
1

배치도
1. 진입마당
2. 커뮤니티마당
3. 주민공동텃밭
4. 독서정원
5. 독서마당
6. 주거플랫폼마당
7. 주차장
8. 옥상공연장(옥탑층)
9. 가을바람언덕(옥탑층)
10. 태양광발전패널(지붕붕층)
1
2
3
3
4
5
6
7
8
9
10
10
9
8
7
6
5
4
3
3
2
1
배치도
1. 진입마당
2. 커뮤니티마당
3. 주민공동텃밭
4. 독서정원
5. 독서마당
6. 주거플랫폼마당
7. 주차장
8. 옥상공연장(옥탑층)
9. 가을바람언덕(옥탑층)
10. 태양광발전패널(지붕붕층)

배치도
1. 진입마당
2. 커뮤니티마당
3. 주민공동텃밭
4. 독서정원
5. 독서마당
6. 주거플랫폼마당
7. 주차장
8. 옥상공연장(옥탑층)
9. 가을바람언덕(옥탑층)
10. 태양광발전패널(지붕붕층)
1
2
3
3
4
5
6
7
8
9
10
10
9
8
7
6
5
4
3
3
2
1
배치도
1. 진입마당
2. 커뮤니티마당
3. 주민공동텃밭
4. 독서정원
5. 독서마당
6. 주거플랫폼마당
7. 주차장
8. 옥상공연장(옥탑층)
9. 가을바람언덕(옥탑층)
10. 태양광발전패널(지붕붕층)

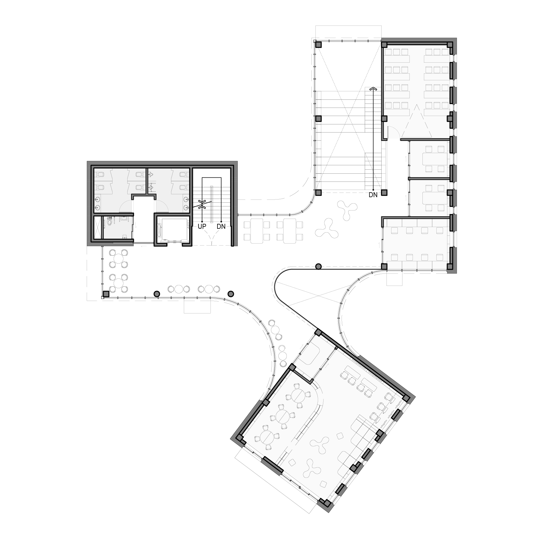
지상1층 평면도
1. 홀
2. 북카페
3. 도서관
4. 다목적문화 커뮤니티룸
5. 진입마당
6. 커뮤니티마당
7. 독서마당
8. 주민공동텃밭
9. 주거플랫폼마당
10. 주차장
1
2
3
4
5
6
7
8
9
10
10
9
8
7
6
5
4
3
2
1

지상1층 평면도
1. 홀
2. 북카페
3. 도서관
4. 다목적문화 커뮤니티룸
5. 진입마당
6. 커뮤니티마당
7. 독서마당
8. 주민공동텃밭
9. 주거플랫폼마당
10. 주차장
1
2
3
4
5
6
7
8
9
10
10
9
8
7
6
5
4
3
2
1
지상1층 평면도
1. 홀
2. 북카페
3. 도서관
4. 다목적문화 커뮤니티룸
5. 진입마당
6. 커뮤니티마당
7. 독서마당
8. 주민공동텃밭
9. 주거플랫폼마당
10. 주차장

지상1층 평면도
1. 홀
2. 북카페
3. 도서관
4. 다목적문화 커뮤니티룸
5. 진입마당
6. 커뮤니티마당
7. 독서마당
8. 주민공동텃밭
9. 주거플랫폼마당
10. 주차장
1
2
3
4
5
6
7
8
9
10
10
9
8
7
6
5
4
3
2
1
지상1층 평면도
1. 홀
2. 북카페
3. 도서관
4. 다목적문화 커뮤니티룸
5. 진입마당
6. 커뮤니티마당
7. 독서마당
8. 주민공동텃밭
9. 주거플랫폼마당
10. 주차장

지상2층 평면도
1. 홀
2. 독서라운지
3. 계단식 자유열람실
4. 교육실
5. 세미나룸
6. 공부방
7. 디지털놀이방
1
2
3
4
5
5
6
7
7
6
5
5
4
3
2
1

지상2층 평면도
1. 홀
2. 독서라운지
3. 계단식 자유열람실
4. 교육실
5. 세미나룸
6. 공부방
7. 디지털놀이방
1
2
3
4
5
5
6
7
7
6
5
5
4
3
2
1
지상2층 평면도
1. 홀
2. 독서라운지
3. 계단식 자유열람실
4. 교육실
5. 세미나룸
6. 공부방
7. 디지털놀이방

지상2층 평면도
1. 홀
2. 독서라운지
3. 계단식 자유열람실
4. 교육실
5. 세미나룸
6. 공부방
7. 디지털놀이방
1
2
3
4
5
5
6
7
7
6
5
5
4
3
2
1
지상2층 평면도
1. 홀
2. 독서라운지
3. 계단식 자유열람실
4. 교육실
5. 세미나룸
6. 공부방
7. 디지털놀이방

옥탑층 평면도
1. 홀
2. 옥상정원
3. 옥상공연장
4. 가을바람언덕
5. 실외기
1
2
3
4
5
5
4
3
2
1

옥탑층 평면도
1. 홀
2. 옥상정원
3. 옥상공연장
4. 가을바람언덕
5. 실외기
1
2
3
4
5
5
4
3
2
1
옥탑층 평면도
1. 홀
2. 옥상정원
3. 옥상공연장
4. 가을바람언덕
5. 실외기

옥탑층 평면도
1. 홀
2. 옥상정원
3. 옥상공연장
4. 가을바람언덕
5. 실외기
1
2
3
4
5
5
4
3
2
1
옥탑층 평면도
1. 홀
2. 옥상정원
3. 옥상공연장
4. 가을바람언덕
5. 실외기

1
1
1
6
5
2
종단면도
1. 홀
2. 북카페
3. 실외기
4. 옥상정원
5. 진입마당
6. 독서마당
7. 주민공동텃밭
3
7
4
1
1
1
2
3
4
5
6
7
7
6
5
4
3
2
1
1
1

1
1
1
6
5
2
종단면도
1. 홀
2. 북카페
3. 실외기
4. 옥상정원
5. 진입마당
6. 독서마당
7. 주민공동텃밭
3
7
4
1
1
1
2
3
4
5
6
7
7
6
5
4
3
2
1
1
1
종단면도
1. 홀
2. 북카페
3. 실외기
4. 옥상정원
5. 진입마당
6. 독서마당
7. 주민공동텃밭

1
1
1
6
5
2
종단면도
1. 홀
2. 북카페
3. 실외기
4. 옥상정원
5. 진입마당
6. 독서마당
7. 주민공동텃밭
3
7
4
1
1
1
2
3
4
5
6
7
7
6
5
4
3
2
1
1
1
종단면도
1. 홀
2. 북카페
3. 실외기
4. 옥상정원
5. 진입마당
6. 독서마당
7. 주민공동텃밭

2
2
3
횡단면도
1. 북카페
2. 다목적문화 커뮤니티룸
3. 도서관
4. 디지털놀이방
5. 가을바람언덕
6. 옥상공연장
7. 주민공동텃밭
1
2
3
4
5
6
7
7
6
5
4
3
2
1

2
2
3
횡단면도
1. 북카페
2. 다목적문화 커뮤니티룸
3. 도서관
4. 디지털놀이방
5. 가을바람언덕
6. 옥상공연장
7. 주민공동텃밭
1
2
3
4
5
6
7
7
6
5
4
3
2
1
횡단면도
1. 북카페
2. 다목적문화 커뮤니티룸
3. 도서관
4. 디지털놀이방
5. 가을바람언덕
6. 옥상공연장
7. 주민공동텃밭

2
2
3
횡단면도
1. 북카페
2. 다목적문화 커뮤니티룸
3. 도서관
4. 디지털놀이방
5. 가을바람언덕
6. 옥상공연장
7. 주민공동텃밭
1
2
3
4
5
6
7
7
6
5
4
3
2
1
횡단면도
1. 북카페
2. 다목적문화 커뮤니티룸
3. 도서관
4. 디지털놀이방
5. 가을바람언덕
6. 옥상공연장
7. 주민공동텃밭



대지현황 분석 및 기본계획 방향
1. 대지현황 분석
대지는 추풍령리 마을 북동쪽에 산지가 시작하는 곳에 위치한다. 대지 남측의 추풍령삼거리와 서측의 추풍령역은 대지에서 약 500m 떨어져 있고 그 사이에 주요 공공시설이 위치한다. 대지 동측에는 마암산이 병풍처럼 대지를 둘러싸고 있다. 북측으로 임대주택으로 구성된 주거플랫폼이 들어선다.
2. 3개 영역의 경계
기존의 추풍령리 마을과 마암산에 주거플랫폼이 추가되어, 대지는 다른 성격의 3개 영역이 교차하는 경계가 된다. 대지 남∙서측으로는 완만한 경사 아래로 추풍령리 마을을 조망할 수 있고, 동측으로 올려다 보면 마암산이 눈에 들어온다. 그리고 주거플랫폼에 들어설 주택의 위치와 일조∙프라이버시 등을 고려하여, 문화복합시설을 배치해야 한다.
3. 매스와 외부공간
외부공간은 3부분으로 분절된다. 추풍령리 마을 방향의 외부공간은 지역주민을 위한 커뮤니티마당이 된다. 마암산쪽 사이 공간은 주민공동텃밭으로 활용한다. 주거플랫폼과 인접한 부분에는 주차장을 배치한다. 그리고 영역이 중첩되는 경계에 매스를 배치하여, 매스가 담아내는 프로그램으로 경계를 완화한다.
대지현황 분석 및 기본계획 방향
1. 대지현황 분석
대지는 추풍령리 마을 북동쪽에 산지가 시작하는 곳에 위치한다. 대지 남측의 추풍령삼거리와 서측의 추풍령역은 대지에서 약 500m 떨어져 있고 그 사이에 주요 공공시설이 위치한다. 대지 동측에는 마암산이 병풍처럼 대지를 둘러싸고 있다. 북측으로 임대주택으로 구성된 주거플랫폼이 들어선다.
2. 3개 영역의 경계
기존의 추풍령리 마을과 마암산에 주거플랫폼이 추가되어, 대지는 다른 성격의 3개 영역이 교차하는 경계가 된다. 대지 남∙서측으로는 완만한 경사 아래로 추풍령리 마을을 조망할 수 있고, 동측으로 올려다 보면 마암산이 눈에 들어온다. 그리고 주거플랫폼에 들어설 주택의 위치와 일조∙프라이버시 등을 고려하여, 문화복합시설을 배치해야 한다.
3. 매스와 외부공간
외부공간은 3부분으로 분절된다. 추풍령리 마을 방향의 외부공간은 지역주민을 위한 커뮤니티마당이 된다. 마암산쪽 사이 공간은 주민공동텃밭으로 활용한다. 주거플랫폼과 인접한 부분에는 주차장을 배치한다. 그리고 영역이 중첩되는 경계에 매스를 배치하여, 매스가 담아내는 프로그램으로 경계를 완화한다.
Connect to Content
Add layers or components to swipe between.
Connect to Content
Add layers or components to swipe between.
설계과정
1. 3개의 매스, 3개의 외부공간
공용공간(추풍령리 마을↔︎주거플랫폼) : 신안로 및 주차장과 접근성 고려
도서관(주거플랫폼↔︎마암산) : 도로 및 주거플랫폼과 거리 고려
다목적문화 커뮤니티룸(마암산↔︎추풍령리 마을) : 커뮤니티마당의 마을축제나, 텃밭에서 수확한 작물을 활용한 김장담그기 등 여러 행사를 고려
2. 하나의 공간, 확장되는 커뮤니티
3개 매스를 연결하여, 하나의 공간으로 만든다. 매스에 나뉘어 있던 프로그램은 하나의 연속적인 바닥 위에 놓인다. 그 중심에 북카페를 배치하여 프로그램 간의 경계를 허물게 되면, 주민들은 북카페를 거쳐 자유롭게 이동할 수 있다. 내∙외부공간을 연계하여, 매스 사이의 틈에 위치한 크고 작은 마당도 북카페가 된다. 그리고 마당 너머 추풍령리 마을, 마암산, 주거플랫폼까지 시선을 확장한다.
3. 풍경을 담아내는 가을바람언덕
추풍령리는 분지 지형으로, 대지 어느 곳에서나 산세를 볼 수 있다. 지역경관을 고려하여, 지붕과 옥상의 형태에 경사를 적용한다. 가을바람언덕과 옥상공연장의 경사를 따라 올라가면, 마암산의 봉우리가 눈에 들어온다. 반대로 높은 곳에 올라 아래쪽을 내려다 보면, 추풍령리 마을과 소백산맥이 펼쳐진다.
설계과정
1. 3개의 매스, 3개의 외부공간
공용공간(추풍령리 마을↔︎주거플랫폼) : 신안로 및 주차장과 접근성 고려
도서관(주거플랫폼↔︎마암산) : 도로 및 주거플랫폼과 거리 고려
다목적문화 커뮤니티룸(마암산↔︎추풍령리 마을) : 커뮤니티마당의 마을축제나, 텃밭에서 수확한 작물을 활용한 김장담그기 등 여러 행사를 고려
2. 하나의 공간, 확장되는 커뮤니티
3개 매스를 연결하여, 하나의 공간으로 만든다. 매스에 나뉘어 있던 프로그램은 하나의 연속적인 바닥 위에 놓인다. 그 중심에 북카페를 배치하여 프로그램 간의 경계를 허물게 되면, 주민들은 북카페를 거쳐 자유롭게 이동할 수 있다. 내∙외부공간을 연계하여, 매스 사이의 틈에 위치한 크고 작은 마당도 북카페가 된다. 그리고 마당 너머 추풍령리 마을, 마암산, 주거플랫폼까지 시선을 확장한다.
3. 풍경을 담아내는 가을바람언덕
추풍령리는 분지 지형으로, 대지 어느 곳에서나 산세를 볼 수 있다. 지역경관을 고려하여, 지붕과 옥상의 형태에 경사를 적용한다. 가을바람언덕과 옥상공연장의 경사를 따라 올라가면, 마암산의 봉우리가 눈에 들어온다. 반대로 높은 곳에 올라 아래쪽을 내려다 보면, 추풍령리 마을과 소백산맥이 펼쳐진다.



지상2층 평면도
1. 홀
2. 독서라운지
3. 계단식 자유열람실
4. 교육실
5. 세미나룸
6. 공부방
7. 디지털놀이방



커뮤니티마당에서 바라본 문화복합시설



주거플랫폼에서 바라본 문화복합시설



주민공동텃밭에서 바라본 문화복합시설



커뮤니티의 중심이 되는 북카페
북카페는 1층 전체와 외부로 확장되고, 주거플랫폼 커뮤니티의 중심이 된다.



3개의 매스를 연결하는 하나의 공간
각 매스에 담긴 3개의 프로그램은 연속적인 바닥 위에 놓이고, 주민들은 중앙의 북카페를 거쳐 자유롭게 이동할 수 있다.



이어지는 활동과 시선
매스 사이의 틈으로 여러 마당과 북카페가 중첩되어 보이고, 북카페를 중심으로 활동과 시선은 외부로 확장된다.



입체적 공간과 펼쳐지는 시선
계단식 자유열람실을 통해, 1층의 도서관은 2층으로 확장되고, 도서관에서는 주거플랫폼마당과 단지가 내려다 보인다.



도서관(계단식 자유열람실)



도서관(지상1층)




3
2
1
4
►
►
4
1
2
3
다목적문화 커뮤니티룸(지상1층)

3
2
1
4
►
►
4
1
2
3
다목적문화 커뮤니티룸(지상1층)

3
2
1
4
►
►
4
1
2
3
다목적문화 커뮤니티룸(지상1층)
다목적문화 커뮤니티룸(지상1층)

디지털놀이방(지상2층)
4
5
4
2
2
1
3
2
2
1
4
5
3

디지털놀이방(지상2층)
4
5
4
2
2
1
3
2
2
1
4
5
3

디지털놀이방(지상2층)
4
1
5
2
2
3
3
2
2
1
4
5
3
디지털놀이방(지상2층)

4
3
5
2
5
1
7
7
가을바람언덕과 옥상공연장
가을바람언덕과 옥상공연장의 경사는 주변 지형을 따라간다. 시선이 경사를 따라 올라가면, 마암산의 봉우리가 눈에 들어온다.
2
5
5
4
3
7
7
1
6
6
6

4
3
5
2
5
1
7
7
가을바람언덕과 옥상공연장
가을바람언덕과 옥상공연장의 경사는 주변 지형을 따라간다. 시선이 경사를 따라 올라가면, 마암산의 봉우리가 눈에 들어온다.
2
5
5
4
3
7
7
1
6
6
6

2
5
5
4
3
7
7
1
가을바람언덕과 옥상공연장
가을바람언덕과 옥상공연장의 경사는 주변 지형을 따라간다. 시선이 경사를 따라 올라가면, 마암산의 봉우리가 눈에 들어온다.
2
5
5
4
3
7
7
1
4
6
6
가을바람언덕과 옥상공연장
가을바람언덕과 옥상공연장의 경사는 주변 지형을 따라간다. 시선이 경사를 따라 올라가면, 마암산의 봉우리가 눈에 들어온다.

2
3
3
1
5
4
4
1
3
3
2
5
4
풍경을 담아내는 가을바람언덕
가을바람언덕에 올라 내려다 보면, 추풍령리 마을과 소백산맥이 펼쳐진다. 가을바람언덕을 감싸고 있는 벽돌난간은 성곽처럼 오르락 내리락 이어져, 추풍령의 풍경을 담아낸다.

2
3
3
1
5
4
4
1
3
3
2
5
4
풍경을 담아내는 가을바람언덕
가을바람언덕에 올라 내려다 보면, 추풍령리 마을과 소백산맥이 펼쳐진다. 가을바람언덕을 감싸고 있는 벽돌난간은 성곽처럼 오르락 내리락 이어져, 추풍령의 풍경을 담아낸다.

1
3
3
2
5
5
4
1
3
3
2
5
4
풍경을 담아내는 가을바람언덕
가을바람언덕에 올라 내려다 보면, 추풍령리 마을과 소백산맥이 펼쳐진다. 가을바람언덕을 감싸고 있는 벽돌난간은 성곽처럼 오르락 내리락 이어져, 추풍령의 풍경을 담아낸다.
풍경을 담아내는 가을바람언덕
가을바람언덕에 올라 내려다 보면, 추풍령리 마을과 소백산맥이 펼쳐진다. 가을바람언덕을 감싸고 있는 벽돌난간은 성곽처럼 오르락 내리락 이어져, 추풍령의 풍경을 담아낸다.

2
1
3
3
1
2
3
임대주택단지의 스케일과 맥락을 존중하는 문화복합시설

2
1
3
3
1
2
3
임대주택단지의 스케일과 맥락을 존중하는 문화복합시설

1
1
2
3
1
2
3
임대주택단지의 스케일과 맥락을 존중하는 문화복합시설
임대주택단지의 스케일과 맥락을 존중하는 문화복합시설

1
1
8
1
8
7
6
5
4
3
7
6
5
2
8
7
6
5
4
3
1
1
1
2
지상1층 평면도
1. 홀
2. 북카페
3. 도서관
4. 다목적문화 커뮤니티룸
5. 진입마당
6. 커뮤니티마당
7. 독서마당
8. 주민공동텃밭
9. 주거플랫폼마당
10. 주차장

1
1
8
1
8
7
6
5
4
3
7
6
5
2
8
7
6
5
4
3
1
1
1
2
지상1층 평면도
1. 홀
2. 북카페
3. 도서관
4. 다목적문화 커뮤니티룸
5. 진입마당
6. 커뮤니티마당
7. 독서마당
8. 주민공동텃밭
9. 주거플랫폼마당
10. 주차장

1
1
8
1
8
7
6
5
4
3
1
1
1
2
8
7
6
5
4
3
1
1
1
2
지상1층 평면도
1. 홀
2. 북카페
3. 도서관
4. 다목적문화 커뮤니티룸
5. 진입마당
6. 커뮤니티마당
7. 독서마당
8. 주민공동텃밭
9. 주거플랫폼마당
10. 주차장
지상1층 평면도
1. 홀
2. 북카페
3. 도서관
4. 다목적문화 커뮤니티룸
5. 진입마당
6. 커뮤니티마당
7. 독서마당
8. 주민공동텃밭
9. 주거플랫폼마당
10. 주차장

2
2
6
2
7
4
5
5
5
5
5
3
5
5
7
1
7
6
5
5
5
5
4
3
2
2
2
1
배치도
1. 진입마당
2. 커뮤니티마당
3. 주민공동텃밭
4. 독서정원
5. 독서마당
6. 주거플랫폼마당
7. 주차장
8. 옥상공연장(옥탑층)
9. 가을바람언덕(옥탑층)
10. 태양광발전패널(지붕붕층)

2
2
6
2
7
4
5
5
5
5
5
3
5
5
7
1
7
6
5
5
5
5
4
3
2
2
2
1
배치도
1. 진입마당
2. 커뮤니티마당
3. 주민공동텃밭
4. 독서정원
5. 독서마당
6. 주거플랫폼마당
7. 주차장
8. 옥상공연장(옥탑층)
9. 가을바람언덕(옥탑층)
10. 태양광발전패널(지붕붕층)

2
2
6
2
7
6
5
5
5
5
4
3
2
2
2
1
7
6
5
5
5
5
4
3
2
2
2
1
배치도
1. 진입마당
2. 커뮤니티마당
3. 주민공동텃밭
4. 독서정원
5. 독서마당
6. 주거플랫폼마당
7. 주차장
8. 옥상공연장(옥탑층)
9. 가을바람언덕(옥탑층)
10. 태양광발전패널(지붕붕층)
배치도
1. 진입마당
2. 커뮤니티마당
3. 주민공동텃밭
4. 독서정원
5. 독서마당
6. 주거플랫폼마당
7. 주차장
8. 옥상공연장(옥탑층)
9. 가을바람언덕(옥탑층)
10. 태양광발전패널(지붕붕층)