
정릉3동 주민센터 <입상>
Jeongneung3-dong Community Service Center
위치 : 서울특별시 성북구 정릉동 673-3 외 1필지
기간 : 2025.7 ~ 2025.9
용도 : 공공업무시설
면적 : 1,904.20㎡
규모 : 지상4층 / 지하2층
설계 : 문경진, 김령아
사진 : 아울러건축사사무소

정릉3동 주민센터 <입상>
Jeongneung3-dong Community Service Center
위치 : 서울특별시 성북구 정릉동 673-3 외 1필지
기간 : 2025.7 ~ 2025.9
용도 : 공공업무시설
면적 : 1,904.20㎡
규모 : 지상4층 / 지하2층
설계 : 문경진, 김령아
사진 : 아울러건축사사무소

정릉3동 주민센터 <입상>
Jeongneung3-dong Community Service Center
위치 : 서울특별시 성북구 정릉동 673-3 외 1필지
기간 : 2025.7 ~ 2025.9
용도 : 공공업무시설
면적 : 1,904.20㎡
규모 : 지상4층 / 지하2층
설계 : 문경진, 김령아
사진 : 아울러건축사사무소



옹기종기 주민센터
북악산 너머 북한산 아래, 가파른 경사가 시작하는 지점에 정릉3동 주민센터가 있고, 그 뒤로는 경사를 따라 작은 집들이 옹기종기 모여있다. 대지 앞뒤에 있는 두 길의 높이차가 9m를 넘으니, 앞길에서는 지하2층부터 6개층이 보일 것이다. 이런 곳에는 주변 건물에 비해 거대한 주민센터보다, 주민들이 부담없이 다가갈 수 있는 주민센터가 어울린다.
매스를 나누고, 경사를 따라 쌓고, 두 길을 맞이하는 방향으로 회전시킨다. 비슷한듯 다른 모습으로 모여 있는 매스에는 주민들의 다양한 삶이 닮겨있다. 경사를 따라 올라가며 옹기종기 모여있는 주민센터는 마을 풍경에 스며든다.
옹기종기 주민센터
북악산 너머 북한산 아래, 가파른 경사가 시작하는 지점에 정릉3동 주민센터가 있고, 그 뒤로는 경사를 따라 작은 집들이 옹기종기 모여있다. 대지 앞뒤에 있는 두 길의 높이차가 9m를 넘으니, 앞길에서는 지하2층부터 6개층이 보일 것이다. 이런 곳에는 주변 건물에 비해 거대한 주민센터보다, 주민들이 부담없이 다가갈 수 있는 주민센터가 어울린다.
매스를 나누고, 경사를 따라 쌓고, 두 길을 맞이하는 방향으로 회전시킨다. 비슷한듯 다른 모습으로 모여 있는 매스에는 주민들의 다양한 삶이 닮겨있다. 경사를 따라 올라가며 옹기종기 모여있는 주민센터는 마을 풍경에 스며든다.

1. 대지현황 분석

2. 최대 건축가능 영역 확인

3. 매스의 분절과 높낮이 조정

4. 가로 축에 맞추어 매스 회전

5. 높이가 다른 두 길을 잇는 매개영역 : 커뮤니티 라운지

6. 프로그램의 특성을 담아내는 입면계획

1. 대지현황 분석

2. 최대 건축가능 영역 확인

3. 매스의 분절과 높낮이 조정

4. 가로 축에 맞추어 매스 회전

5. 높이가 다른 두 길을 잇는 매개영역 : 커뮤니티 라운지

6. 프로그램의 특성을 담아내는 입면계획
설계과정
1. 대지현황 분석
이형의 대지에는 대지경계와 도로경계로 인한 2가지 축이 있다. 그리고 대지의 앞길과 뒷길은 3개층 높이의 고저차가 있다.
2. 최대 건축가능 영역 확인
요구되는 면적과 층수를 확보하기 위해, 대지 형태를 따라 확보할 수 있는 최대 건축가능 영역을 확인한다.
3. 매스의 분절과 높낮이 조정
경사진 지형과 정북일조에 의한 높이제한을 반영하여, 매스를 분절하고 높낮이를 조정한다.
4. 가로 축에 맞추어 매스 회전
가로에 맞닿은 매스는 접근성과 가로경관을 고려하여, 가로의 축에 맞추어 회전시킨다. 매스는 대지경계축과 도로경계축 - 2가지 축에 대응한다.
5. 높이가 다른 두 길을 잇는 매개영역 : 커뮤니티 라운지
매스의 회전으로 벌어진 두 축 사이에 틈이 생긴다. 이 공간을 높이가 다른 두 길을 잇는 매개영역 - 커뮤니티 라운지로 활용한다.
6. 프로그램의 특성을 담아내는 입면계획
각각의 매스가 담아내는 프로그램의 특성에 적합한 재료를 적용한다. 매스의 회전으로 인해 만들어진 외부공간은 내부와 연계하여 활용한다.
설계과정

1. 대지현황 분석

2. 최대 건축가능 영역 확인

3. 매스의 분절과 높낮이 조정

4. 가로 축에 맞추어 매스 회전

5. 높이가 다른 두 길을 잇는 매개영역 : 커뮤니티 라운지

6. 프로그램의 특성을 담아내는 입면계획
1. 대지현황 분석
이형의 대지에는 대지경계와 도로경계로 인한 2가지 축이 있다. 그리고 대지의 앞길과 뒷길은 3개층 높이의 고저차가 있다.
2. 최대 건축가능 영역 확인
요구되는 면적과 층수를 확보하기 위해, 대지 형태를 따라 확보할 수 있는 최대 건축가능 영역을 확인한다.
3. 매스의 분절과 높낮이 조정
경사진 지형과 정북일조에 의한 높이제한을 반영하여, 매스를 분절하고 높낮이를 조정한다.
4. 가로 축에 맞추어 매스 회전
가로에 맞닿은 매스는 접근성과 가로경관을 고려하여, 가로의 축에 맞추어 회전시킨다. 매스는 대지경계축과 도로경계축 - 2가지 축에 대응한다.
5. 높이가 다른 두 길을 잇는 매개영역 : 커뮤니티 라운지
매스의 회전으로 벌어진 두 축 사이에 틈이 생긴다. 이 공간을 높이가 다른 두 길을 잇는 매개영역 - 커뮤니티 라운지로 활용한다.
6. 프로그램의 특성을 담아내는 입면계획
각각의 매스가 담아내는 프로그램의 특성에 적합한 재료를 적용한다. 매스의 회전으로 인해 만들어진 외부공간은 내부와 연계하여 활용한다.



커뮤니티 라운지 (지상1~2층)
커뮤니티 라운지는 3개층 높이의 아트리움으로, 주민센터(B1~1F)와 주민자치회관(2F~4F)에 걸쳐 건물의 중앙에 위치하여, 건물의 중심이 된다.
그리고 3개층 높이차가 나는 앞마당과 뒷마당의 동선과 시선을 연결하여, 마을 커뮤니티의 중심이 된다.



솔샘로1길에서 바라본 주민센터 (지하2층)
솔샘로1길을 따라 걸으면, 마을카페(B2)와 연계한 앞마당, 주민센터(B1)로 올라가는 계단, 커뮤니티 라운지(1F)와 연계한 커뮤니티 테라스가 주민들을 맞이한다. 솔샘로1길에서 바라본 경관에는 주민센터의 분절된 매스가 스며들어 있다.



솔샘로3길에서 바라본 주민센터 (지상2층)
주민자치회관(2F~3F)과 연계한 뒷마당은, 경사가 급하고 폭이 좁은 솔샘로3길을 걷는 주민들이 쉬어가는 공원이 된다. 그리고 외부계단을 따라 올라가면, 옥상정원을 지나 대강당(4F)에 다다른다. 두 매스를 축과 재료로 구분하여, 각각 다른 프로그램을 담아내고 도시맥락과과 정북일조 높이제한에 대응한다.




배치도
1. 앞마당(지하2층)
2. 주차장 출입통로(지하2층)
3. 커뮤니티 테라스(지상1층)
4. 발코니(지상3층)
5. 태양광발전패널(지붕층)
6. 옥상정원(지상4층)
7. 뒷마당(지상2층)
1
3
4
6
6
7
5
5
2
2
5
5
7
6
6
4
3
1

배치도
1. 앞마당(지하2층)
2. 주차장 출입통로(지하2층)
3. 커뮤니티 테라스(지상1층)
4. 발코니(지상3층)
5. 태양광발전패널(지붕층)
6. 옥상정원(지상4층)
7. 뒷마당(지상2층)
1
3
4
6
6
7
5
5
2
2
5
5
7
6
6
4
3
1
배치도
1. 앞마당(지하2층)
2. 주차장 출입통로(지하2층)
3. 커뮤니티 테라스(지상1층)
4. 발코니(지상3층)
5. 태양광발전패널(지붕층)
6. 옥상정원(지상4층)
7. 뒷마당(지상2층)

배치도
1. 앞마당(지하2층)
2. 주차장 출입통로(지하2층)
3. 커뮤니티 테라스(지상1층)
4. 발코니(지상3층)
5. 태양광발전패널(지붕층)
6. 옥상정원(지상4층)
7. 뒷마당(지상2층)
1
3
4
6
6
7
5
5
2
2
5
5
7
6
6
4
3
1
배치도
1. 앞마당(지하2층)
2. 주차장 출입통로(지하2층)
3. 커뮤니티 테라스(지상1층)
4. 발코니(지상3층)
5. 태양광발전패널(지붕층)
6. 옥상정원(지상4층)
7. 뒷마당(지상2층)

지하2층 평면도
1. 앞마당
2. 주차장 출입통로로
3. 마을카페
4. 주차장
5. 창고
6. 기계실
6
5
4
3
2
1
1
2
3
4
5
6

지하2층 평면도
1. 앞마당
2. 주차장 출입통로로
3. 마을카페
4. 주차장
5. 창고
6. 기계실
6
5
4
3
2
1
1
2
3
4
5
6
지하2층 평면도
1. 앞마당
2. 주차장 출입통로로
3. 마을카페
4. 주차장
5. 창고
6. 기계실

지하2층 평면도
1. 앞마당
2. 주차장 출입통로로
3. 마을카페
4. 주차장
5. 창고
6. 기계실
6
5
4
3
2
1
1
2
3
4
5
6
지하2층 평면도
1. 앞마당
2. 주차장 출입통로로
3. 마을카페
4. 주차장
5. 창고
6. 기계실

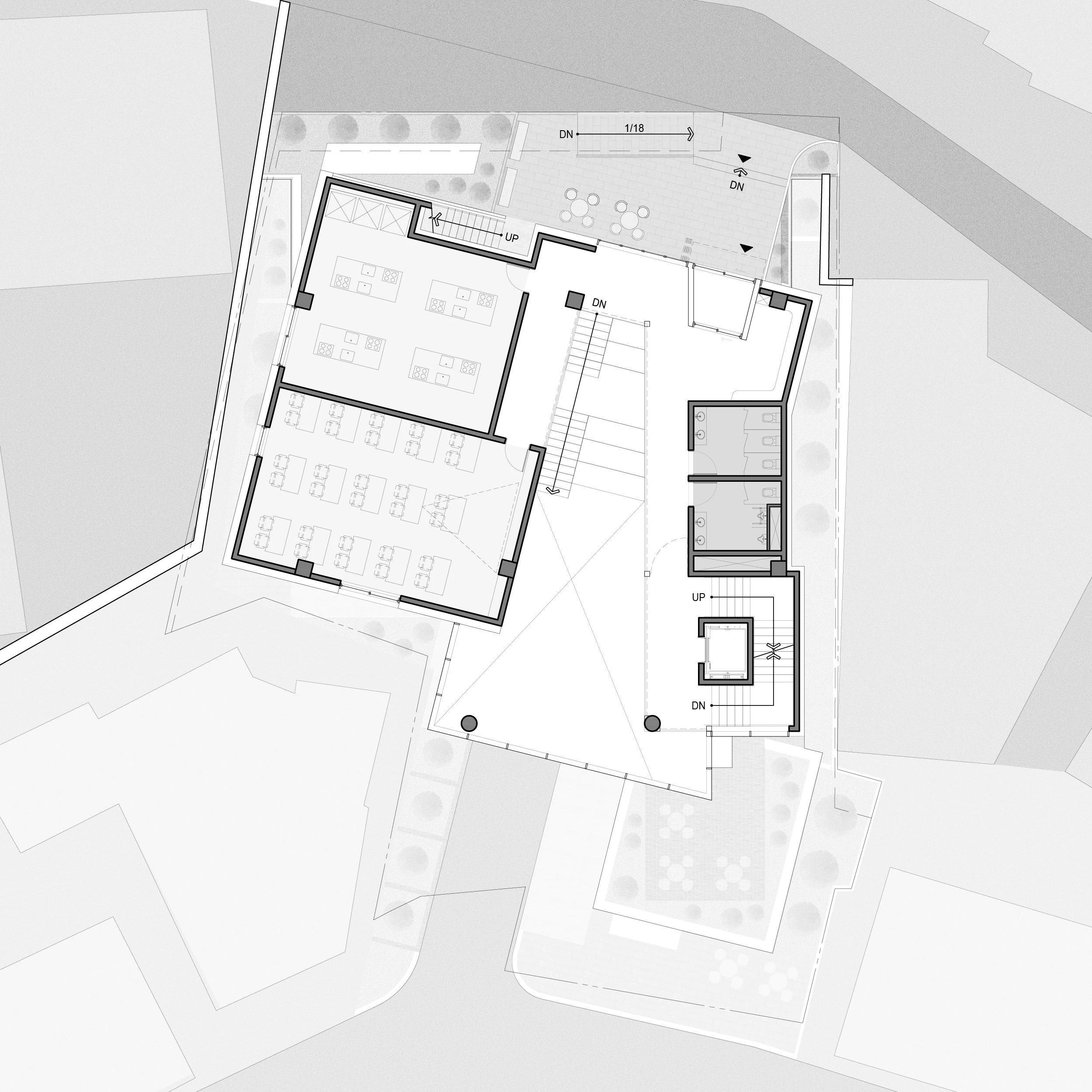
지하1층 평면도
1. 홀(무인민원발급)
2. 민원실
3. 사무공간간
4. 건강관리실
5. 상담실
6. 부속실
7. 휴게정원
8. 선큰정원
1
2
3
4
5
6
6
6
6
7
8
8
7
6
6
6
6
5
4
3
2
1

지하1층 평면도
1. 홀(무인민원발급)
2. 민원실
3. 사무공간간
4. 건강관리실
5. 상담실
6. 부속실
7. 휴게정원
8. 선큰정원
1
2
3
4
5
6
6
6
6
7
8
8
7
6
6
6
6
5
4
3
2
1
지하1층 평면도
1. 홀(무인민원발급)
2. 민원실
3. 사무공간간
4. 건강관리실
5. 상담실
6. 부속실
7. 휴게정원
8. 선큰정원

지하1층 평면도
1. 홀(무인민원발급)
2. 민원실
3. 사무공간간
4. 건강관리실
5. 상담실
6. 부속실
7. 휴게정원
8. 선큰정원
1
2
3
4
5
6
6
6
6
7
8
8
7
6
6
6
6
5
4
3
2
1
지하1층 평면도
1. 홀(무인민원발급)
2. 민원실
3. 사무공간간
4. 건강관리실
5. 상담실
6. 부속실
7. 휴게정원
8. 선큰정원

지상1층 평면도
1. 새마을문고
2. 휴게실
3. 동장실
4. 회의실
5. 창고
6. 동대원실
7. 동대장실
8. MDF/전기실
9. 커뮤니티테라스
1
2
3
4
5
5
6
7
8
9
9
8
7
6
5
5
4
3
2
1

지상1층 평면도
1. 새마을문고
2. 휴게실
3. 동장실
4. 회의실
5. 창고
6. 동대원실
7. 동대장실
8. MDF/전기실
9. 커뮤니티테라스
1
2
3
4
5
5
6
7
8
9
9
8
7
6
5
5
4
3
2
1
지상1층 평면도
1. 새마을문고
2. 휴게실
3. 동장실
4. 회의실
5. 창고
6. 동대원실
7. 동대장실
8. MDF/전기실
9. 커뮤니티테라스

지상1층 평면도
1. 새마을문고
2. 휴게실
3. 동장실
4. 회의실
5. 창고
6. 동대원실
7. 동대장실
8. MDF/전기실
9. 커뮤니티테라스
1
2
3
4
5
5
6
7
8
9
9
8
7
6
5
5
4
3
2
1
지상1층 평면도
1. 새마을문고
2. 휴게실
3. 동장실
4. 회의실
5. 창고
6. 동대원실
7. 동대장실
8. MDF/전기실
9. 커뮤니티테라스

2
4
5
3
1
지상2층 평면도
1. 뒷마당
2. 라운지
3. 커뮤니티라운지
4. 프로그램실
5. 커뮤니티실(공유주방)
1
3
5
4
2

2
4
5
3
1
지상2층 평면도
1. 뒷마당
2. 라운지
3. 커뮤니티라운지
4. 프로그램실
5. 커뮤니티실(공유주방)
1
3
5
4
2
지상2층 평면도
1. 뒷마당
2. 라운지
3. 커뮤니티라운지
4. 프로그램실
5. 커뮤니티실(공유주방)

2
4
5
3
1
지상2층 평면도
1. 뒷마당
2. 라운지
3. 커뮤니티라운지
4. 프로그램실
5. 커뮤니티실(공유주방)
1
3
5
4
2
지상2층 평면도
1. 뒷마당
2. 라운지
3. 커뮤니티라운지
4. 프로그램실
5. 커뮤니티실(공유주방)

지상3층 평면도
1. 홀
2. 주민자치회사무실
3. 소강당(다목적실)
4. 수유실
5. 외부계단
6. 발코니
1
2
3
4
5
6
6
5
4
3
2
1

지상3층 평면도
1. 홀
2. 주민자치회사무실
3. 소강당(다목적실)
4. 수유실
5. 외부계단
6. 발코니
1
2
3
4
5
6
6
5
4
3
2
1
지상3층 평면도
1. 홀
2. 주민자치회사무실
3. 소강당(다목적실)
4. 수유실
5. 외부계단
6. 발코니

지상3층 평면도
1. 홀
2. 주민자치회사무실
3. 소강당(다목적실)
4. 수유실
5. 외부계단
6. 발코니
1
2
3
4
5
6
6
5
4
3
2
1
지상3층 평면도
1. 홀
2. 주민자치회사무실
3. 소강당(다목적실)
4. 수유실
5. 외부계단
6. 발코니

2
1
3
지상4층 평면도
1. 홀
2. 대강당
3. 부속실
4. 옥상정원
3
4
4
4
4
3
3
1
2

2
1
3
지상4층 평면도
1. 홀
2. 대강당
3. 부속실
4. 옥상정원
3
4
4
4
4
3
3
1
2
지상4층 평면도
1. 홀
2. 대강당
3. 부속실
4. 옥상정원

2
1
3
지상4층 평면도
1. 홀
2. 대강당
3. 부속실
4. 옥상정원
3
4
4
4
4
3
3
1
2
지상4층 평면도
1. 홀
2. 대강당
3. 부속실
4. 옥상정원

종단면도
1. 주차장
2. 사무공간
3. 민원실
4. 커뮤니티라운지
5. 동장실
6. 휴게실
7. 프로그램실
8. 소강당
9. 대강당
10. 휴게정원
11. 선큰정원
12. 옥상정원
1
3
2
5
4
6
7
8
9
10
11
12
1
2
3
4
5
6
7
8
9
10
11
12
12
11
10
9
8
7
6
5
4
3
2
1

종단면도
1. 주차장
2. 사무공간
3. 민원실
4. 커뮤니티라운지
5. 동장실
6. 휴게실
7. 프로그램실
8. 소강당
9. 대강당
10. 휴게정원
11. 선큰정원
12. 옥상정원
1
3
2
5
4
6
7
8
9
10
11
12
1
2
3
4
5
6
7
8
9
10
11
12
12
11
10
9
8
7
6
5
4
3
2
1
종단면도
1. 주차장
2. 사무공간
3. 민원실
4. 커뮤니티라운지
5. 동장실
6. 휴게실
7. 프로그램실
8. 소강당
9. 대강당
10. 휴게정원
11. 선큰정원
12. 옥상정원

종단면도
1. 주차장
2. 사무공간
3. 민원실
4. 커뮤니티라운지
5. 동장실
6. 휴게실
7. 프로그램실
8. 소강당
9. 대강당
10. 휴게정원
11. 선큰정원
12. 옥상정원
1
3
2
5
4
6
7
8
9
10
11
12
1
2
3
4
5
6
7
8
9
10
11
12
12
11
10
9
8
7
6
5
4
3
2
1
종단면도
1. 주차장
2. 사무공간
3. 민원실
4. 커뮤니티라운지
5. 동장실
6. 휴게실
7. 프로그램실
8. 소강당
9. 대강당
10. 휴게정원
11. 선큰정원
12. 옥상정원

횡단면도
1. 앞마당
2. 주차장
3. 홀
4. 민원실
5. 커뮤니티테라스
6. 새마을문고
7. 커뮤니티라운지
8. 뒷마당
9. 발코니
10. 주민자치회사무실
11. 대강당
12. 옥상정원
6
7
5
8
10
9
1
1
3
4
4
3
2
7
8
9
10
11
12
12
11
10
9
8
7
6
5
4
3
3
2
1

횡단면도
1. 앞마당
2. 주차장
3. 홀
4. 민원실
5. 커뮤니티테라스
6. 새마을문고
7. 커뮤니티라운지
8. 뒷마당
9. 발코니
10. 주민자치회사무실
11. 대강당
12. 옥상정원
6
7
5
8
10
9
1
2
3
3
4
5
6
7
8
9
10
11
12
12
11
10
9
8
7
6
5
4
3
3
2
1
횡단면도
1. 앞마당
2. 주차장
3. 홀
4. 민원실
5. 커뮤니티테라스
6. 새마을문고
7. 커뮤니티라운지
8. 뒷마당
9. 발코니
10. 주민자치회사무실
11. 대강당
12. 옥상정원

횡단면도
1. 앞마당
2. 주차장
3. 홀
4. 민원실
5. 커뮤니티테라스
6. 새마을문고
7. 커뮤니티라운지
8. 뒷마당
9. 발코니
10. 주민자치회사무실
11. 대강당
12. 옥상정원
6
7
5
8
10
9
1
1
3
4
4
3
2
7
8
9
10
11
12
12
11
10
9
8
7
6
5
4
3
3
2
1
횡단면도
1. 앞마당
2. 주차장
3. 홀
4. 민원실
5. 커뮤니티테라스
6. 새마을문고
7. 커뮤니티라운지
8. 뒷마당
9. 발코니
10. 주민자치회사무실
11. 대강당
12. 옥상정원



옹기종기 주민센터
북악산 너머 북한산 아래, 가파른 경사가 시작하는 지점에 정릉3동 주민센터가 있고, 그 뒤로는 경사를 따라 작은 집들이 옹기종기 모여있다. 대지 앞뒤에 있는 두 길의 높이차가 9m를 넘으니, 앞길에서는 지하2층부터 6개층이 보일 것이다. 이런 곳에는 주변 건물에 비해 거대한 주민센터보다, 주민들이 부담없이 다가갈 수 있는 주민센터가 어울린다.
매스를 나누고, 경사를 따라 쌓고, 두 길을 맞이하는 방향으로 회전시킨다. 비슷한듯 다른 모습으로 모여 있는 매스에는 주민들의 다양한 삶이 닮겨있다. 경사를 따라 올라가며 옹기종기 모여있는 주민센터는 마을 풍경에 스며든다.
옹기종기 주민센터
북악산 너머 북한산 아래, 가파른 경사가 시작하는 지점에 정릉3동 주민센터가 있고, 그 뒤로는 경사를 따라 작은 집들이 옹기종기 모여있다. 대지 앞뒤에 있는 두 길의 높이차가 9m를 넘으니, 앞길에서는 지하2층부터 6개층이 보일 것이다. 이런 곳에는 주변 건물에 비해 거대한 주민센터보다, 주민들이 부담없이 다가갈 수 있는 주민센터가 어울린다.
매스를 나누고, 경사를 따라 쌓고, 두 길을 맞이하는 방향으로 회전시킨다. 비슷한듯 다른 모습으로 모여 있는 매스에는 주민들의 다양한 삶이 닮겨있다. 경사를 따라 올라가며 옹기종기 모여있는 주민센터는 마을 풍경에 스며든다.
Connect to Content
Add layers or components to swipe between.
Connect to Content
Add layers or components to swipe between.
설계과정
1. 대지현황 분석
이형의 대지에는 대지경계와 도로경계로 인한 2가지 축이 있다. 그리고 대지의 앞길과 뒷길은 3개층 높이의 고저차가 있다.
2. 최대 건축가능 영역 확인
요구되는 면적과 층수를 확보하기 위해, 대지 형태를 따라 확보할 수 있는 최대 건축가능 영역을 확인한다.
3. 매스의 분절과 높낮이 조정
경사진 지형과 정북일조에 의한 높이제한을 반영하여, 매스를 분절하고 높낮이를 조정한다.
4. 가로 축에 맞추어 매스 회전
가로에 맞닿은 매스는 접근성과 가로경관을 고려하여, 가로의 축에 맞추어 회전시킨다. 매스는 대지경계축과 도로경계축 - 2가지 축에 대응한다.
5. 높이가 다른 두 길을 잇는 매개영역 : 커뮤니티 라운지
매스의 회전으로 벌어진 두 축 사이에 틈이 생긴다. 이 공간을 높이가 다른 두 길을 잇는 매개영역 - 커뮤니티 라운지로 활용한다.
6. 프로그램의 특성을 담아내는 입면계획
각각의 매스가 담아내는 프로그램의 특성에 적합한 재료를 적용한다. 매스의 회전으로 인해 만들어진 외부공간은 내부와 연계하여 활용한다.
설계과정
1. 대지현황 분석
이형의 대지에는 대지경계와 도로경계로 인한 2가지 축이 있다. 그리고 대지의 앞길과 뒷길은 3개층 높이의 고저차가 있다.
2. 최대 건축가능 영역 확인
요구되는 면적과 층수를 확보하기 위해, 대지 형태를 따라 확보할 수 있는 최대 건축가능 영역을 확인한다.
3. 매스의 분절과 높낮이 조정
경사진 지형과 정북일조에 의한 높이제한을 반영하여, 매스를 분절하고 높낮이를 조정한다.
4. 가로 축에 맞추어 매스 회전
가로에 맞닿은 매스는 접근성과 가로경관을 고려하여, 가로의 축에 맞추어 회전시킨다. 매스는 대지경계축과 도로경계축 - 2가지 축에 대응한다.
5. 높이가 다른 두 길을 잇는 매개영역 : 커뮤니티 라운지
매스의 회전으로 벌어진 두 축 사이에 틈이 생긴다. 이 공간을 높이가 다른 두 길을 잇는 매개영역 - 커뮤니티 라운지로 활용한다.
6. 프로그램의 특성을 담아내는 입면계획
각각의 매스가 담아내는 프로그램의 특성에 적합한 재료를 적용한다. 매스의 회전으로 인해 만들어진 외부공간은 내부와 연계하여 활용한다.



지상2층 평면도
1. 뒷마당
2. 라운지
3. 커뮤니티라운지
4. 프로그램실
5. 커뮤니티실(공유주방)



커뮤니티 라운지 (지상1~2층)
커뮤니티 라운지는 3개층 높이의 아트리움으로, 주민센터(B1~1F)와 주민자치회관(2F~4F)에 걸쳐 건물의 중앙에 위치하여, 건물의 중심이 된다.
그리고 3개층 높이차가 나는 앞마당과 뒷마당의 동선과 시선을 연결하여, 마을 커뮤니티의 중심이 된다.



솔샘로1길에서 바라본 주민센터 (지하2층)
솔샘로1길을 따라 걸으면, 마을카페(B2)와 연계한 앞마당, 주민센터(B1)로 올라가는 계단, 커뮤니티 라운지(1F)와 연계한 커뮤니티 테라스가 주민들을 맞이한다. 솔샘로1길에서 바라본 경관에는 주민센터의 분절된 매스가 스며들어 있다.






솔샘로3길에서 바라본 주민센터 (지상2층)
주민자치회관(2F~3F)과 연계한 뒷마당은, 경사가 급하고 폭이 좁은 솔샘로3길을 걷는 주민들이 쉬어가는 공원이 된다. 그리고 외부계단을 따라 올라가면, 옥상정원을 지나 대강당(4F)에 다다른다. 두 매스를 축과 재료로 구분하여, 각각 다른 프로그램을 담아내고 도시맥락과과 정북일조 높이제한에 대응한다.



















3
2
1
4
►
►
4
1
2
3

3
2
1
4
►
►
4
1
2
3

3
2
1
4
►
►
4
1
2
3

4
5
4
2
2
1
3
2
2
1
4
5
3

4
5
4
2
2
1
3
2
2
1
4
5
3

4
1
5
2
2
3
3
2
2
1
4
5
3

4
3
5
2
5
1
7
7
2
5
5
4
3
7
7
1
6
6
6

4
3
5
2
5
1
7
7
2
5
5
4
3
7
7
1
6
6
6

2
5
5
4
3
7
7
1
2
5
5
4
3
7
7
1
4
6
6

2
3
3
1
5
4
4
1
3
3
2
5
4
배치도
1. 앞마당(지하2층)
2. 주차장 출입통로(지하2층)
3. 커뮤니티 테라스(지상1층)
4. 발코니(지상3층)
5. 태양광발전패널(지붕층)
6. 옥상정원(지상4층)
7. 뒷마당(지상2층)

2
3
3
1
5
4
4
1
3
3
2
5
4
배치도
1. 앞마당(지하2층)
2. 주차장 출입통로(지하2층)
3. 커뮤니티 테라스(지상1층)
4. 발코니(지상3층)
5. 태양광발전패널(지붕층)
6. 옥상정원(지상4층)
7. 뒷마당(지상2층)

1
3
3
2
5
5
4
1
3
3
2
5
4
배치도
1. 앞마당(지하2층)
2. 주차장 출입통로(지하2층)
3. 커뮤니티 테라스(지상1층)
4. 발코니(지상3층)
5. 태양광발전패널(지붕층)
6. 옥상정원(지상4층)
7. 뒷마당(지상2층)
배치도
1. 앞마당(지하2층)
2. 주차장 출입통로(지하2층)
3. 커뮤니티 테라스(지상1층)
4. 발코니(지상3층)
5. 태양광발전패널(지붕층)
6. 옥상정원(지상4층)
7. 뒷마당(지상2층)

2
1
3
3
1
2
3
지하2층 평면도
1. 앞마당
2. 주차장 출입통로로
3. 마을카페
4. 주차장
5. 창고
6. 기계실

2
1
3
3
1
2
3
지하2층 평면도
1. 앞마당
2. 주차장 출입통로로
3. 마을카페
4. 주차장
5. 창고
6. 기계실

1
1
2
3
1
2
3
지하2층 평면도
1. 앞마당
2. 주차장 출입통로로
3. 마을카페
4. 주차장
5. 창고
6. 기계실
지하2층 평면도
1. 앞마당
2. 주차장 출입통로로
3. 마을카페
4. 주차장
5. 창고
6. 기계실

1
1
8
1
8
7
6
5
4
3
7
6
5
2
8
7
6
5
4
3
1
1
1
2
지상1층 평면도
1. 새마을문고
2. 휴게실
3. 동장실
4. 회의실
5. 창고
6. 동대원실
7. 동대장실
8. MDF/전기실
9. 커뮤니티테라스

1
1
8
1
8
7
6
5
4
3
7
6
5
2
8
7
6
5
4
3
1
1
1
2
지상1층 평면도
1. 새마을문고
2. 휴게실
3. 동장실
4. 회의실
5. 창고
6. 동대원실
7. 동대장실
8. MDF/전기실
9. 커뮤니티테라스

1
1
8
1
8
7
6
5
4
3
1
1
1
2
8
7
6
5
4
3
1
1
1
2
지상1층 평면도
1. 새마을문고
2. 휴게실
3. 동장실
4. 회의실
5. 창고
6. 동대원실
7. 동대장실
8. MDF/전기실
9. 커뮤니티테라스
지상1층 평면도
1. 새마을문고
2. 휴게실
3. 동장실
4. 회의실
5. 창고
6. 동대원실
7. 동대장실
8. MDF/전기실
9. 커뮤니티테라스

2
2
6
2
7
4
5
5
5
5
5
3
5
5
7
1
7
6
5
5
5
5
4
3
2
2
2
1
지하1층 평면도
1. 홀(무인민원발급)
2. 민원실
3. 사무공간간
4. 건강관리실
5. 상담실
6. 부속실
7. 휴게정원
8. 선큰정원

2
2
6
2
7
4
5
5
5
5
5
3
5
5
7
1
7
6
5
5
5
5
4
3
2
2
2
1
지하1층 평면도
1. 홀(무인민원발급)
2. 민원실
3. 사무공간간
4. 건강관리실
5. 상담실
6. 부속실
7. 휴게정원
8. 선큰정원

2
2
6
2
7
6
5
5
5
5
4
3
2
2
2
1
7
6
5
5
5
5
4
3
2
2
2
1
지하1층 평면도
1. 홀(무인민원발급)
2. 민원실
3. 사무공간간
4. 건강관리실
5. 상담실
6. 부속실
7. 휴게정원
8. 선큰정원
지하1층 평면도
1. 홀(무인민원발급)
2. 민원실
3. 사무공간간
4. 건강관리실
5. 상담실
6. 부속실
7. 휴게정원
8. 선큰정원